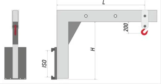
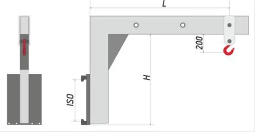
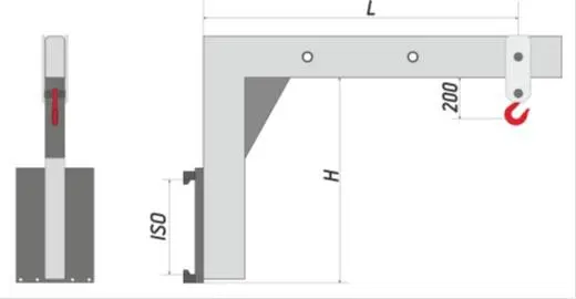
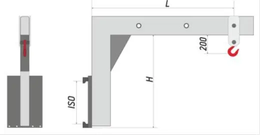
Один из типов дополнительного навесного оборудования, которым можно оснастить вилочный погрузчик, – стрела. Будучи оснащенной крюком, она превращает погрузчик в передвижной кран. С ее помощью перемещают биг-бэги и другие грузы, которые поднимают при помощи строп. Существует несколько видов стрел, каждый из которых отличается функциональными возможностями и типом крепления.
Это может быть безблочная стрела, крепящаяся на вилы или каретку. В любом случае подъем груза выполняется без применения тросов и блоков. Устройство приводится в действие цепной передачей вилочного погрузчика. Отсутствие механических узлов обеспечивает надежность, долговечность, неприхотливость. Стрелы имеют несколько секций для установки крюка, что дает возможность менять центр тяжести.
Все что нужно знать, перед тем, как купить – стрела вилочного погрузчика может обладать различным типом монтажа, грузоподъемностью, количеством секций, длиной. Все эти данные указаны на сайте в техническом описании товаров. Чтобы правильно подобрать модель и получить скидку, необходимо обратиться к менеджерам.














































































































